Teatr Ochoty w Warszawie

Zamknij galerię

100%
Teatr Ochoty w Warszawie
1

Teatr Ochoty w Warszawie

Autor: Archiwum serwisu

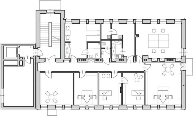
Teatr Ochoty w Warszawie, rzut parteru; rys. dzięki uprzejmości pracowni
100%
Teatr Ochoty w Warszawie
2

Teatr Ochoty w Warszawie

Autor: Archiwum serwisu

Teatr Ochoty w Warszawie, rzut drugiego piętra; rys. dzięki uprzejmości pracowni
100%
Teatr Ochoty w Warszawie
3

Teatr Ochoty w Warszawie

Autor: Archiwum serwisu

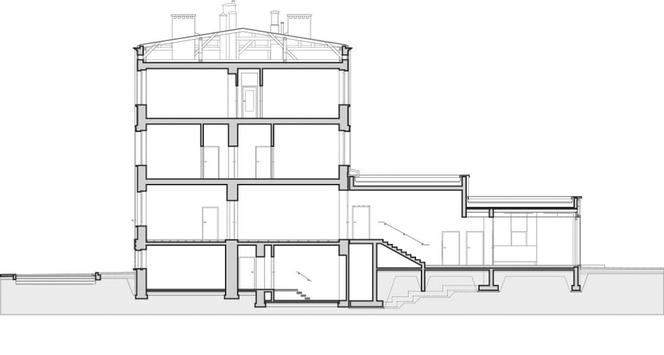
Teatr Ochoty w Warszawie, przekrój A-A; rys. dzięki uprzejmości pracowni
4

Zostało jeszcze do przeczytania 97% treści

Wydanie cyfrowe

12 MIESIĘCY

129.90

Dostęp do archiwum miesięcznika oraz do e-wydań specjalnych!
KUP DOSTĘP

Wydanie cyfrowe

1 MIESIĄC (AUTOODNAWIALNA)

5.99

Pierwszy miesiąc 5.99, kolejne 11.99 zł
KUP DOSTĘP

Wydanie cyfrowe + prenumerata drukowana. Dostawa za pośrednictwem Poczty Polskiej

12 MIESIĘCY

269.90

Dostęp do archiwum miesięcznika oraz do e-wydań specjalnych!
KUP TERAZ

Nowość! Wydanie cyfrowe + druk z dostawą do Paczkomatu Inpost

12 MIESIĘCY

269.90

Dostęp do archiwum miesięcznika oraz do e-wydań specjalnych!
KUP TERAZ

Masz już konto?

Zaloguj się
Wyloguj się
5

Zostało jeszcze do przeczytania 97% treści

Wydanie cyfrowe

12 MIESIĘCY

129.90

Dostęp do archiwum miesięcznika oraz do e-wydań specjalnych!
KUP DOSTĘP

Wydanie cyfrowe

1 MIESIĄC (AUTOODNAWIALNA)

5.99

Pierwszy miesiąc 5.99, kolejne 11.99 zł
KUP DOSTĘP

Wydanie cyfrowe + prenumerata drukowana. Dostawa za pośrednictwem Poczty Polskiej

12 MIESIĘCY

269.90

Dostęp do archiwum miesięcznika oraz do e-wydań specjalnych!
KUP TERAZ

Nowość! Wydanie cyfrowe + druk z dostawą do Paczkomatu Inpost

12 MIESIĘCY

269.90

Dostęp do archiwum miesięcznika oraz do e-wydań specjalnych!
KUP TERAZ

Masz już konto?

Zaloguj się
Wyloguj się
6

Zostało jeszcze do przeczytania 97% treści

Wydanie cyfrowe

12 MIESIĘCY

129.90

Dostęp do archiwum miesięcznika oraz do e-wydań specjalnych!
KUP DOSTĘP

Wydanie cyfrowe

1 MIESIĄC (AUTOODNAWIALNA)

5.99

Pierwszy miesiąc 5.99, kolejne 11.99 zł
KUP DOSTĘP

Wydanie cyfrowe + prenumerata drukowana. Dostawa za pośrednictwem Poczty Polskiej

12 MIESIĘCY

269.90

Dostęp do archiwum miesięcznika oraz do e-wydań specjalnych!
KUP TERAZ

Nowość! Wydanie cyfrowe + druk z dostawą do Paczkomatu Inpost

12 MIESIĘCY

269.90

Dostęp do archiwum miesięcznika oraz do e-wydań specjalnych!
KUP TERAZ

Masz już konto?

Zaloguj się
Wyloguj się
7

Zostało jeszcze do przeczytania 97% treści

Wydanie cyfrowe

12 MIESIĘCY

129.90

Dostęp do archiwum miesięcznika oraz do e-wydań specjalnych!
KUP DOSTĘP

Wydanie cyfrowe

1 MIESIĄC (AUTOODNAWIALNA)

5.99

Pierwszy miesiąc 5.99, kolejne 11.99 zł
KUP DOSTĘP

Wydanie cyfrowe + prenumerata drukowana. Dostawa za pośrednictwem Poczty Polskiej

12 MIESIĘCY

269.90

Dostęp do archiwum miesięcznika oraz do e-wydań specjalnych!
KUP TERAZ

Nowość! Wydanie cyfrowe + druk z dostawą do Paczkomatu Inpost

12 MIESIĘCY

269.90

Dostęp do archiwum miesięcznika oraz do e-wydań specjalnych!
KUP TERAZ

Masz już konto?

Zaloguj się
Wyloguj się
8

Zostało jeszcze do przeczytania 97% treści

Wydanie cyfrowe

12 MIESIĘCY

129.90

Dostęp do archiwum miesięcznika oraz do e-wydań specjalnych!
KUP DOSTĘP

Wydanie cyfrowe

1 MIESIĄC (AUTOODNAWIALNA)

5.99

Pierwszy miesiąc 5.99, kolejne 11.99 zł
KUP DOSTĘP

Wydanie cyfrowe + prenumerata drukowana. Dostawa za pośrednictwem Poczty Polskiej

12 MIESIĘCY

269.90

Dostęp do archiwum miesięcznika oraz do e-wydań specjalnych!
KUP TERAZ

Nowość! Wydanie cyfrowe + druk z dostawą do Paczkomatu Inpost

12 MIESIĘCY

269.90

Dostęp do archiwum miesięcznika oraz do e-wydań specjalnych!
KUP TERAZ

Masz już konto?

Zaloguj się
Wyloguj się
9

Zostało jeszcze do przeczytania 97% treści

Wydanie cyfrowe

12 MIESIĘCY

129.90

Dostęp do archiwum miesięcznika oraz do e-wydań specjalnych!
KUP DOSTĘP

Wydanie cyfrowe

1 MIESIĄC (AUTOODNAWIALNA)

5.99

Pierwszy miesiąc 5.99, kolejne 11.99 zł
KUP DOSTĘP

Wydanie cyfrowe + prenumerata drukowana. Dostawa za pośrednictwem Poczty Polskiej

12 MIESIĘCY

269.90

Dostęp do archiwum miesięcznika oraz do e-wydań specjalnych!
KUP TERAZ

Nowość! Wydanie cyfrowe + druk z dostawą do Paczkomatu Inpost

12 MIESIĘCY

269.90

Dostęp do archiwum miesięcznika oraz do e-wydań specjalnych!
KUP TERAZ

Masz już konto?

Zaloguj się
Wyloguj się
10

Zostało jeszcze do przeczytania 97% treści

Wydanie cyfrowe

12 MIESIĘCY

129.90

Dostęp do archiwum miesięcznika oraz do e-wydań specjalnych!
KUP DOSTĘP

Wydanie cyfrowe

1 MIESIĄC (AUTOODNAWIALNA)

5.99

Pierwszy miesiąc 5.99, kolejne 11.99 zł
KUP DOSTĘP

Wydanie cyfrowe + prenumerata drukowana. Dostawa za pośrednictwem Poczty Polskiej

12 MIESIĘCY

269.90

Dostęp do archiwum miesięcznika oraz do e-wydań specjalnych!
KUP TERAZ

Nowość! Wydanie cyfrowe + druk z dostawą do Paczkomatu Inpost

12 MIESIĘCY

269.90

Dostęp do archiwum miesięcznika oraz do e-wydań specjalnych!
KUP TERAZ

Masz już konto?

Zaloguj się
Wyloguj się
11

Zostało jeszcze do przeczytania 97% treści

Wydanie cyfrowe

12 MIESIĘCY

129.90

Dostęp do archiwum miesięcznika oraz do e-wydań specjalnych!
KUP DOSTĘP

Wydanie cyfrowe

1 MIESIĄC (AUTOODNAWIALNA)

5.99

Pierwszy miesiąc 5.99, kolejne 11.99 zł
KUP DOSTĘP

Wydanie cyfrowe + prenumerata drukowana. Dostawa za pośrednictwem Poczty Polskiej

12 MIESIĘCY

269.90

Dostęp do archiwum miesięcznika oraz do e-wydań specjalnych!
KUP TERAZ

Nowość! Wydanie cyfrowe + druk z dostawą do Paczkomatu Inpost

12 MIESIĘCY

269.90

Dostęp do archiwum miesięcznika oraz do e-wydań specjalnych!
KUP TERAZ

Masz już konto?

Zaloguj się
Wyloguj się
12

Zostało jeszcze do przeczytania 97% treści

Wydanie cyfrowe

12 MIESIĘCY

129.90

Dostęp do archiwum miesięcznika oraz do e-wydań specjalnych!
KUP DOSTĘP

Wydanie cyfrowe

1 MIESIĄC (AUTOODNAWIALNA)

5.99

Pierwszy miesiąc 5.99, kolejne 11.99 zł
KUP DOSTĘP

Wydanie cyfrowe + prenumerata drukowana. Dostawa za pośrednictwem Poczty Polskiej

12 MIESIĘCY

269.90

Dostęp do archiwum miesięcznika oraz do e-wydań specjalnych!
KUP TERAZ

Nowość! Wydanie cyfrowe + druk z dostawą do Paczkomatu Inpost

12 MIESIĘCY

269.90

Dostęp do archiwum miesięcznika oraz do e-wydań specjalnych!
KUP TERAZ

Masz już konto?

Zaloguj się
Wyloguj się
Poprzednie zdjęcie
Następne zdjęcie
email