Inkubator w Zdziwóju

Zamknij galerię

100%
Inkubator przedsiębiorczości w Zdziwóju
1

Inkubator przedsiębiorczości w Zdziwóju

Autor: Archiwum serwisu

Nowe skrzydło zaprojektowano w systemie niskoenergetycznym. ściany izolowane wełną mineralną (15 cm) i strzechą (20 cm) pozwolą uzyskać wartość przenikania ciepła u na poziomie 0,1 W/M2K
100%
Inkubator przedsiębiorczości w Zdziwóju. Rzut parteru
2

Inkubator przedsiębiorczości w Zdziwóju. Rzut parteru

Autor: Archiwum serwisu

Inkubator przedsiębiorczości w Zdziwóju. Rzut parteru
100%
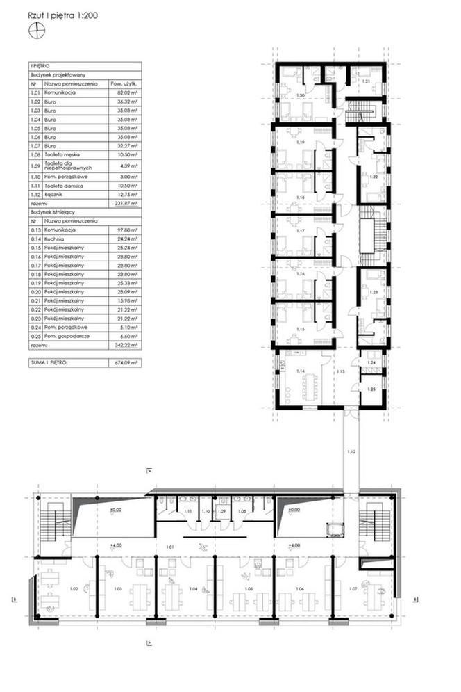
Inkubator przedsiębiorczości w Zdziwóju. Rzut I piętra
3

Inkubator przedsiębiorczości w Zdziwóju. Rzut I piętra

Autor: Archiwum serwisu

Inkubator przedsiębiorczości w Zdziwóju. Rzut I piętra
4

Zostało jeszcze do przeczytania 97% treści

Druk + Wydanie cyfrowe (dostawa Poczta Polska)

Roczna prenumerata

130,00

4 wydania drukowane z bezpłatną dostawą, 4 wydania cyfrowe w wersji online i PDF, bezpłatna dostawa za pośrednictwem Poczty Polskiej
Wybieram

Druk + Wydanie cyfrowe (dostawa InPost)

Roczna prenumerata

150,00

4 wydania drukowane z bezpłatną dostawą, 4 wydania cyfrowe w wersji online i PDF, dostawa do wybranego przez Ciebie Paczkomatu InPost
Wybieram

Wydanie cyfrowe

Roczna prenumerata

70,00

4 wydania cyfrowe w wersji online i PDF
Wybieram

Masz już konto?

Zaloguj się
Wyloguj się
5

Zostało jeszcze do przeczytania 97% treści

Druk + Wydanie cyfrowe (dostawa Poczta Polska)

Roczna prenumerata

130,00

4 wydania drukowane z bezpłatną dostawą, 4 wydania cyfrowe w wersji online i PDF, bezpłatna dostawa za pośrednictwem Poczty Polskiej
Wybieram

Druk + Wydanie cyfrowe (dostawa InPost)

Roczna prenumerata

150,00

4 wydania drukowane z bezpłatną dostawą, 4 wydania cyfrowe w wersji online i PDF, dostawa do wybranego przez Ciebie Paczkomatu InPost
Wybieram

Wydanie cyfrowe

Roczna prenumerata

70,00

4 wydania cyfrowe w wersji online i PDF
Wybieram

Masz już konto?

Zaloguj się
Wyloguj się
6

Zostało jeszcze do przeczytania 97% treści

Druk + Wydanie cyfrowe (dostawa Poczta Polska)

Roczna prenumerata

130,00

4 wydania drukowane z bezpłatną dostawą, 4 wydania cyfrowe w wersji online i PDF, bezpłatna dostawa za pośrednictwem Poczty Polskiej
Wybieram

Druk + Wydanie cyfrowe (dostawa InPost)

Roczna prenumerata

150,00

4 wydania drukowane z bezpłatną dostawą, 4 wydania cyfrowe w wersji online i PDF, dostawa do wybranego przez Ciebie Paczkomatu InPost
Wybieram

Wydanie cyfrowe

Roczna prenumerata

70,00

4 wydania cyfrowe w wersji online i PDF
Wybieram

Masz już konto?

Zaloguj się
Wyloguj się
7

Zostało jeszcze do przeczytania 97% treści

Druk + Wydanie cyfrowe (dostawa Poczta Polska)

Roczna prenumerata

130,00

4 wydania drukowane z bezpłatną dostawą, 4 wydania cyfrowe w wersji online i PDF, bezpłatna dostawa za pośrednictwem Poczty Polskiej
Wybieram

Druk + Wydanie cyfrowe (dostawa InPost)

Roczna prenumerata

150,00

4 wydania drukowane z bezpłatną dostawą, 4 wydania cyfrowe w wersji online i PDF, dostawa do wybranego przez Ciebie Paczkomatu InPost
Wybieram

Wydanie cyfrowe

Roczna prenumerata

70,00

4 wydania cyfrowe w wersji online i PDF
Wybieram

Masz już konto?

Zaloguj się
Wyloguj się
8

Zostało jeszcze do przeczytania 97% treści

Druk + Wydanie cyfrowe (dostawa Poczta Polska)

Roczna prenumerata

130,00

4 wydania drukowane z bezpłatną dostawą, 4 wydania cyfrowe w wersji online i PDF, bezpłatna dostawa za pośrednictwem Poczty Polskiej
Wybieram

Druk + Wydanie cyfrowe (dostawa InPost)

Roczna prenumerata

150,00

4 wydania drukowane z bezpłatną dostawą, 4 wydania cyfrowe w wersji online i PDF, dostawa do wybranego przez Ciebie Paczkomatu InPost
Wybieram

Wydanie cyfrowe

Roczna prenumerata

70,00

4 wydania cyfrowe w wersji online i PDF
Wybieram

Masz już konto?

Zaloguj się
Wyloguj się
9

Zostało jeszcze do przeczytania 97% treści

Druk + Wydanie cyfrowe (dostawa Poczta Polska)

Roczna prenumerata

130,00

4 wydania drukowane z bezpłatną dostawą, 4 wydania cyfrowe w wersji online i PDF, bezpłatna dostawa za pośrednictwem Poczty Polskiej
Wybieram

Druk + Wydanie cyfrowe (dostawa InPost)

Roczna prenumerata

150,00

4 wydania drukowane z bezpłatną dostawą, 4 wydania cyfrowe w wersji online i PDF, dostawa do wybranego przez Ciebie Paczkomatu InPost
Wybieram

Wydanie cyfrowe

Roczna prenumerata

70,00

4 wydania cyfrowe w wersji online i PDF
Wybieram

Masz już konto?

Zaloguj się
Wyloguj się
10

Zostało jeszcze do przeczytania 97% treści

Druk + Wydanie cyfrowe (dostawa Poczta Polska)

Roczna prenumerata

130,00

4 wydania drukowane z bezpłatną dostawą, 4 wydania cyfrowe w wersji online i PDF, bezpłatna dostawa za pośrednictwem Poczty Polskiej
Wybieram

Druk + Wydanie cyfrowe (dostawa InPost)

Roczna prenumerata

150,00

4 wydania drukowane z bezpłatną dostawą, 4 wydania cyfrowe w wersji online i PDF, dostawa do wybranego przez Ciebie Paczkomatu InPost
Wybieram

Wydanie cyfrowe

Roczna prenumerata

70,00

4 wydania cyfrowe w wersji online i PDF
Wybieram

Masz już konto?

Zaloguj się
Wyloguj się
Poprzednie zdjęcie
Następne zdjęcie
email