Fundacja Galerii Foksal

Zamknij galerię

100%
Fundacja Galerii Foksal
1

Fundacja Galerii Foksal

Autor: Archiwum serwisu

Siedziba Fundacji Galerii Foksal, rzut parteru; rys. dzięki uprzejmości Diener & Diener Architekten
100%
Fundacja Galerii Foksal
2

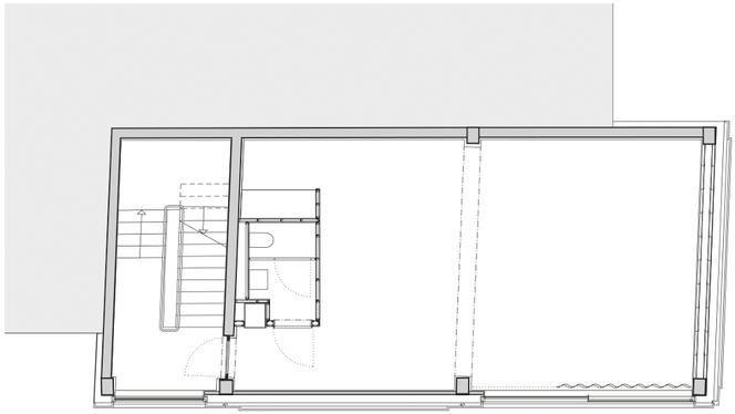
Fundacja Galerii Foksal

Autor: Archiwum serwisu

Siedziba Fundacji Galerii Foksal, pierwsze piętro, rys. dzięki uprzejmości Diener & Diener Architekten
100%
Fundacja Galerii Foksal
3

Fundacja Galerii Foksal

Autor: Archiwum serwisu

Siedziba Fundacji Galerii Foksal, przekrój A-A; rys. dzięki uprzejmości Diener & Diener Architekten
4

Zostało jeszcze do przeczytania 97% treści

Wydanie cyfrowe

12 MIESIĘCY

129.90

Dostęp do archiwum miesięcznika oraz do e-wydań specjalnych!
KUP DOSTĘP

Wydanie cyfrowe

1 MIESIĄC (AUTOODNAWIALNA)

5.99

Pierwszy miesiąc 5.99, kolejne 11.99 zł
KUP DOSTĘP

Wydanie cyfrowe + prenumerata drukowana. Dostawa za pośrednictwem Poczty Polskiej

12 MIESIĘCY

269.90

Dostęp do archiwum miesięcznika oraz do e-wydań specjalnych!
KUP TERAZ

Nowość! Wydanie cyfrowe + druk z dostawą do Paczkomatu Inpost

12 MIESIĘCY

269.90

Dostęp do archiwum miesięcznika oraz do e-wydań specjalnych!
KUP TERAZ

Masz już konto?

Zaloguj się
Wyloguj się
Poprzednie zdjęcie
Następne zdjęcie
email