Das Haus w Krakowie

Zamknij galerię

100%
Das Haus w Krakowie
1

Das Haus w Krakowie

Autor: Archiwum serwisu

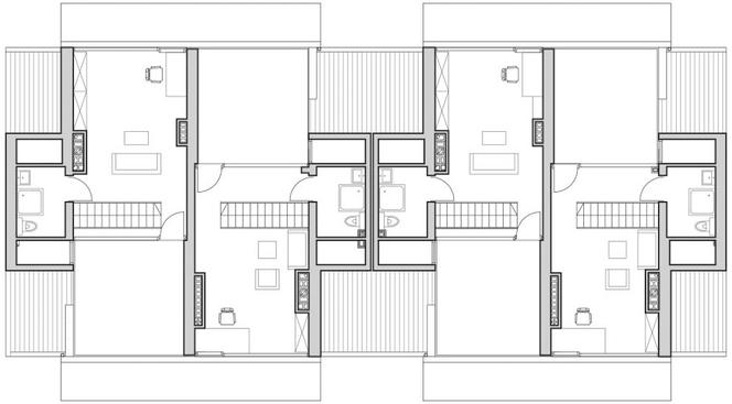
Das Haus w Krakowie, rzut pierwszego piętra, proj.: BP Projekt, Kazimierz Butelski, rys.: dzięki uprzejmości pracowni
100%
Das Haus w Krakowie
2

Das Haus w Krakowie

Autor: Archiwum serwisu

Das Haus w Krakowie, rzut parteru, proj.: BP Projekt, Kazimierz Butelski, rys.: dzięki uprzejmości pracowni
100%
Das Haus w Krakowie
3

Das Haus w Krakowie

Autor: Archiwum serwisu

Das Haus w Krakowie, rzut drugiego piętra, proj.: BP Projekt, Kazimierz Butelski, rys.: dzięki uprzejmości pracowni
4

Zostało jeszcze do przeczytania 97% treści

Wydanie cyfrowe

12 MIESIĘCY

129.90

Dostęp do archiwum miesięcznika oraz do e-wydań specjalnych!
KUP DOSTĘP

Wydanie cyfrowe

1 MIESIĄC (AUTOODNAWIALNA)

5.99

Pierwszy miesiąc 5.99, kolejne 11.99 zł
KUP DOSTĘP

Wydanie cyfrowe + prenumerata drukowana. Dostawa za pośrednictwem Poczty Polskiej

12 MIESIĘCY

269.90

Dostęp do archiwum miesięcznika oraz do e-wydań specjalnych!
KUP TERAZ

Nowość! Wydanie cyfrowe + druk z dostawą do Paczkomatu Inpost

12 MIESIĘCY

269.90

Dostęp do archiwum miesięcznika oraz do e-wydań specjalnych!
KUP TERAZ

Masz już konto?

Zaloguj się
Wyloguj się
5

Zostało jeszcze do przeczytania 97% treści

Wydanie cyfrowe

12 MIESIĘCY

129.90

Dostęp do archiwum miesięcznika oraz do e-wydań specjalnych!
KUP DOSTĘP

Wydanie cyfrowe

1 MIESIĄC (AUTOODNAWIALNA)

5.99

Pierwszy miesiąc 5.99, kolejne 11.99 zł
KUP DOSTĘP

Wydanie cyfrowe + prenumerata drukowana. Dostawa za pośrednictwem Poczty Polskiej

12 MIESIĘCY

269.90

Dostęp do archiwum miesięcznika oraz do e-wydań specjalnych!
KUP TERAZ

Nowość! Wydanie cyfrowe + druk z dostawą do Paczkomatu Inpost

12 MIESIĘCY

269.90

Dostęp do archiwum miesięcznika oraz do e-wydań specjalnych!
KUP TERAZ

Masz już konto?

Zaloguj się
Wyloguj się
Poprzednie zdjęcie
Następne zdjęcie
email