Budynek biurowy Kielecka 5 w Gdyni

Zamknij galerię

100%
Budynek biurowy Kielecka 5 w Gdyni
1

Budynek biurowy Kielecka 5 w Gdyni

Autor: Archiwum serwisu

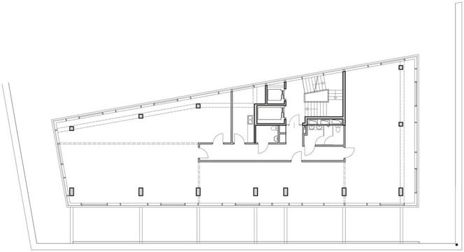
Budynek biurowy Kielecka 5 w Gdyni, rzut parteru, proj.: pracownia Wiesławy Martyńskiej-Ostrowskiej, rys.: dzięki uprzejmości pracowni
100%
Budynek biurowy Kielecka 5 w Gdyni
2

Budynek biurowy Kielecka 5 w Gdyni

Autor: Archiwum serwisu

Budynek biurowy Kielecka 5 w Gdyni, rzut typowej kondygnacji biurowej, proj.: pracownia Wiesławy Martyńskiej-Ostrowskiej, rys.: dzięki uprzejmości pracowni
100%
Budynek biurowy Kielecka 5 w Gdyni
3

Budynek biurowy Kielecka 5 w Gdyni

Autor: Archiwum serwisu

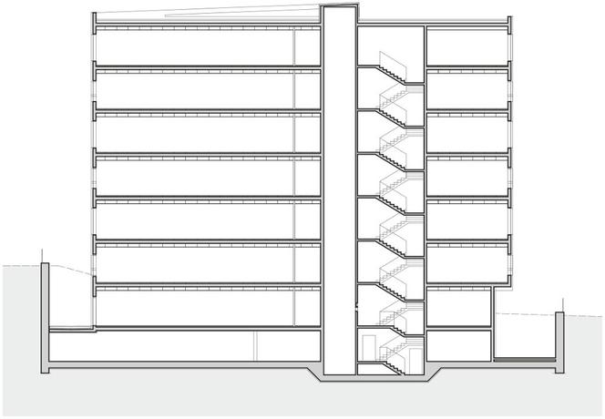
Budynek biurowy Kielecka 5 w Gdyni, przekrój A-A, proj.: pracownia Wiesławy Martyńskiej-Ostrowskiej, rys.: dzięki uprzejmości pracowni
4

Zostało jeszcze do przeczytania 97% treści

Wydanie cyfrowe

12 MIESIĘCY

129.90

Dostęp do archiwum miesięcznika oraz do e-wydań specjalnych!
KUP DOSTĘP

Wydanie cyfrowe

1 MIESIĄC (AUTOODNAWIALNA)

5.99

Pierwszy miesiąc 5.99, kolejne 11.99 zł
KUP DOSTĘP

Wydanie cyfrowe + prenumerata drukowana. Dostawa za pośrednictwem Poczty Polskiej

12 MIESIĘCY

269.90

Dostęp do archiwum miesięcznika oraz do e-wydań specjalnych!
KUP TERAZ

Nowość! Wydanie cyfrowe + druk z dostawą do Paczkomatu Inpost

12 MIESIĘCY

269.90

Dostęp do archiwum miesięcznika oraz do e-wydań specjalnych!
KUP TERAZ

Masz już konto?

Zaloguj się
Wyloguj się
Poprzednie zdjęcie
Następne zdjęcie
email